1240 Pipestone Road Benton Harbor, MI 49022

PRICED AT $100,000

Listing Details

  • $100,000
  • MLS# 26004679
  • Type Commercial - Industrial
  • Status Active
  • 1 full Bathrooms
  • Irregular Lot Size
  • 1957 Year Built
  • Benton Harbor Local Schools

Description

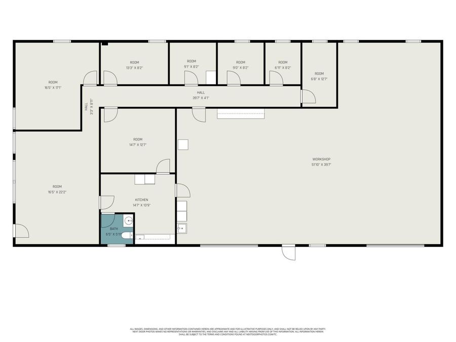
Turn-key 4,160 Sq. Ft. Commercial Building in Benton Harbor, MI ~ LIST PRICE IS OPENING BID for an Online Real Estate Auction, March 18, 2026, featuring a nicely updated commercial building centrally located in the St. Joseph/Benton Harbor region with easy access to Napier Ave. and I-94. Great space and location for contractors, retail, service industry, office use, and much more! The main building is solid block construction with six offices, a conference room, kitchen/break-room, bathroom, and a spacious lobby/reception area. A connected warehouse space has 1010 ceiling (9 to bottom of metal trusses), two 10w x 8h overhead doors, and an...read more

Features

  • Central Air
  • Forced Air
  • $4,791 Taxes
  • Built in 1957
View All Features

Contact the Listing Agent

Contact the Listing Agent
Note: a subscription to the Do Not Call list does not apply when requesting information from our company.

Disclaimer: All information deemed reliable but not guaranteed. All properties are subject to prior sale, change or withdrawal. Neither listing broker(s) or information provider(s) shall be responsible for any typographical errors, misinformation, misprints and shall be held totally harmless. Listing(s) information is provided for consumers personal, non-commercial use and may not be used for any purpose other than to identify prospective properties consumers may be interested in purchasing. Information on this site was last updated 03/13/2026. The listing information on this page last changed on 03/13/2026. The data relating to real estate for sale on this website comes in part from the Internet Data Exchange program of Delta Media Group MLS (last updated Fri 03/13/2026 10:48:00 AM EST) or MichRic (Michigan Regional Information Center) (last updated Fri 03/13/2026 10:42:59 AM EST) or NIRA MLS (last updated Fri 03/13/2026 10:44:59 AM EST) or IRMLS (last updated Fri 03/13/2026 10:33:30 AM EST). Real estate listings held by brokerage firms other than Cressy & Everett Real Estate may be marked with the Internet Data Exchange logo and detailed information about those properties will include the name of the listing broker(s) when required by the MLS. All rights reserved.
Privacy Policy / DMCA Notice / ADA Accessibility

Agency License Information: Cressy & Everett Real Estate is licensed in the states of Indiana and Michigan.


Property Image 1
Property Image 2
Property Image 3
Property Image 4
Property Image 5
Property Image 6
Property Image 7
Property Image 8
Property Image 9
Property Image 10
Property Image 11
Property Image 12
Property Image 13
Property Image 14
Property Image 15
Property Image 16
Property Image 17
Property Image 18
Property Image 19
Property Image 20
Property Image 21
Property Image 22
Property Image 23
Property Image 24
Property Image 25
Property Image 26
Property Image 27
Property Image 28
Property Image 29
Property Image 30
Property Image 31
Property Image 32
Property Image 33
Property Image 34
Property Image 35
Property Image 36
Property Image 37
Property Image 38
Property Image 39
Property Image 40
Property Image 41
Property Image 42
Property Image 43
Property Image 44
Property Image 45

All Property Features

  • Property Type: Commercial - Industrial
  • Business Type: Other, Professional/Office, Professional Service, Distribution, Storage, Retail, Manufacturing
  • Cooling: Central Air
  • Days on CressyEverett.com: 32
  • Exterior: Brick, Metal Siding, Stone
  • Foundation: Slab
  • Heating: Forced Air
  • Interior: Broadband
  • Lot Dimensions: Irregular
  • Lot Size: Irregular
  • Parcel Number: 03-1630-0062-00-1
  • Parking Total: 10
  • Road Surface: Paved
  • Roof Type: Rubber
  • Sub Type: Industrial
  • Taxes: $4,791
  • Units: 1
  • Utilities: Natural Gas Connected, Electricity Connected
  • Year Built: 1957